Very soon
This settlement is located in the tranquil characteristic rural
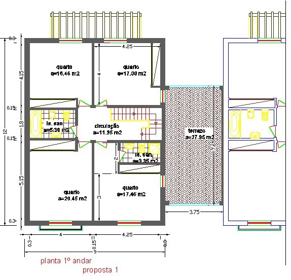
In one land with 6500 sq, 11 houses (only connected by the garage) and with the total building area of 2940 sq, will be erected.
We highlight the traditional architecture of
The plots area range from 280 sq to 532 sq and all the houses with 5 or 6 rooms will have garage.
Deboto village will have a garden and a children playground.